Orchamps-Vennes (25390) Appartement DUPLEX avec garage
Dans un quartier calme d'Orchamps-Vennes, venez découvrir ce projet de réhabilitation de cette bâtisse en 5 logements.
La résidence L'ORICAMPIENNE vous offre la possibilité de devenir propriétaire d'un appartement T3 en duplex de 94 m² Loi Carrez et près de 121 m² au sol.
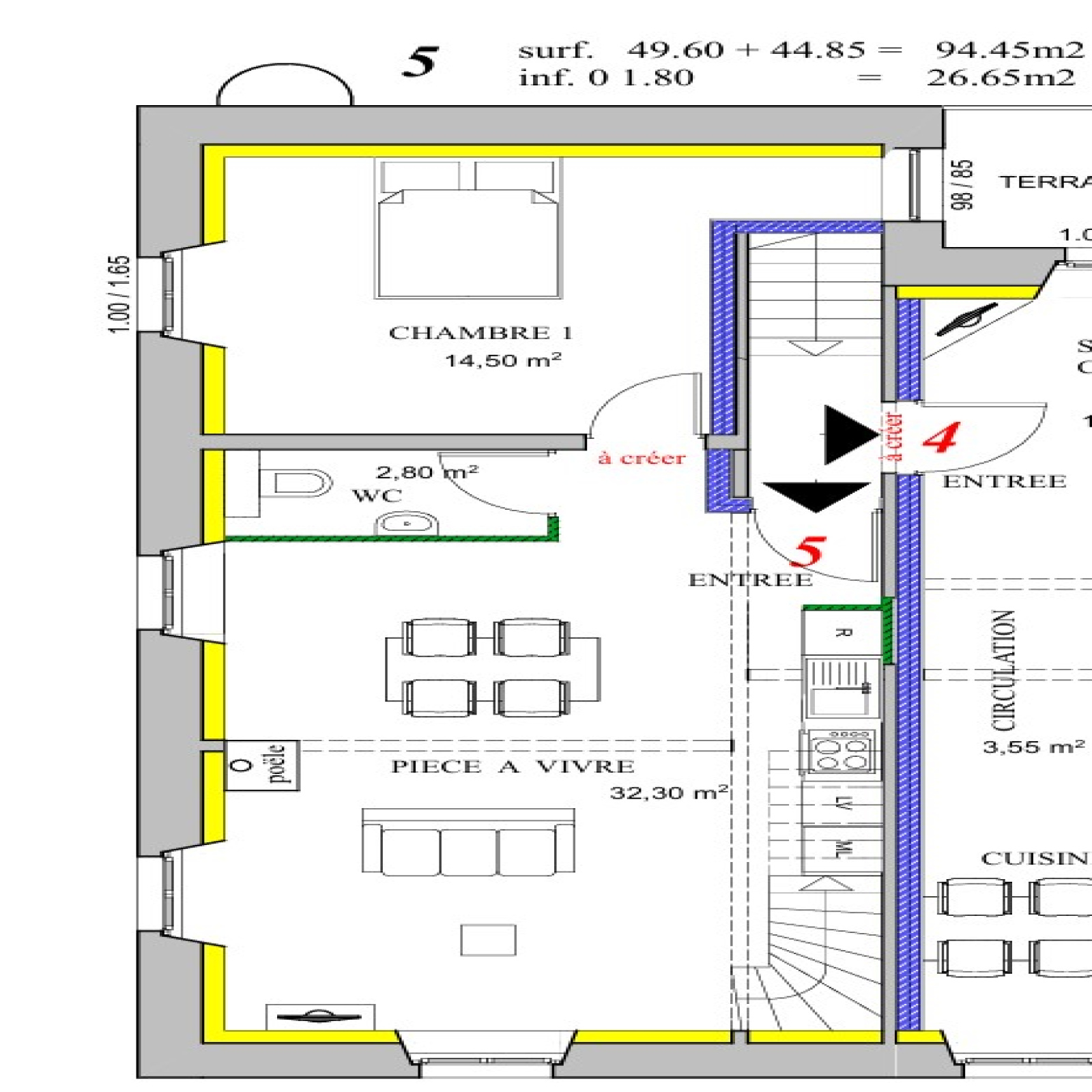
Situé au 1er étage, il sera composé d'un salon-séjour de 32 m², d'une cuisine aménagée et équipée, d'une chambre spacieuse de 14, m², et d'un WC.
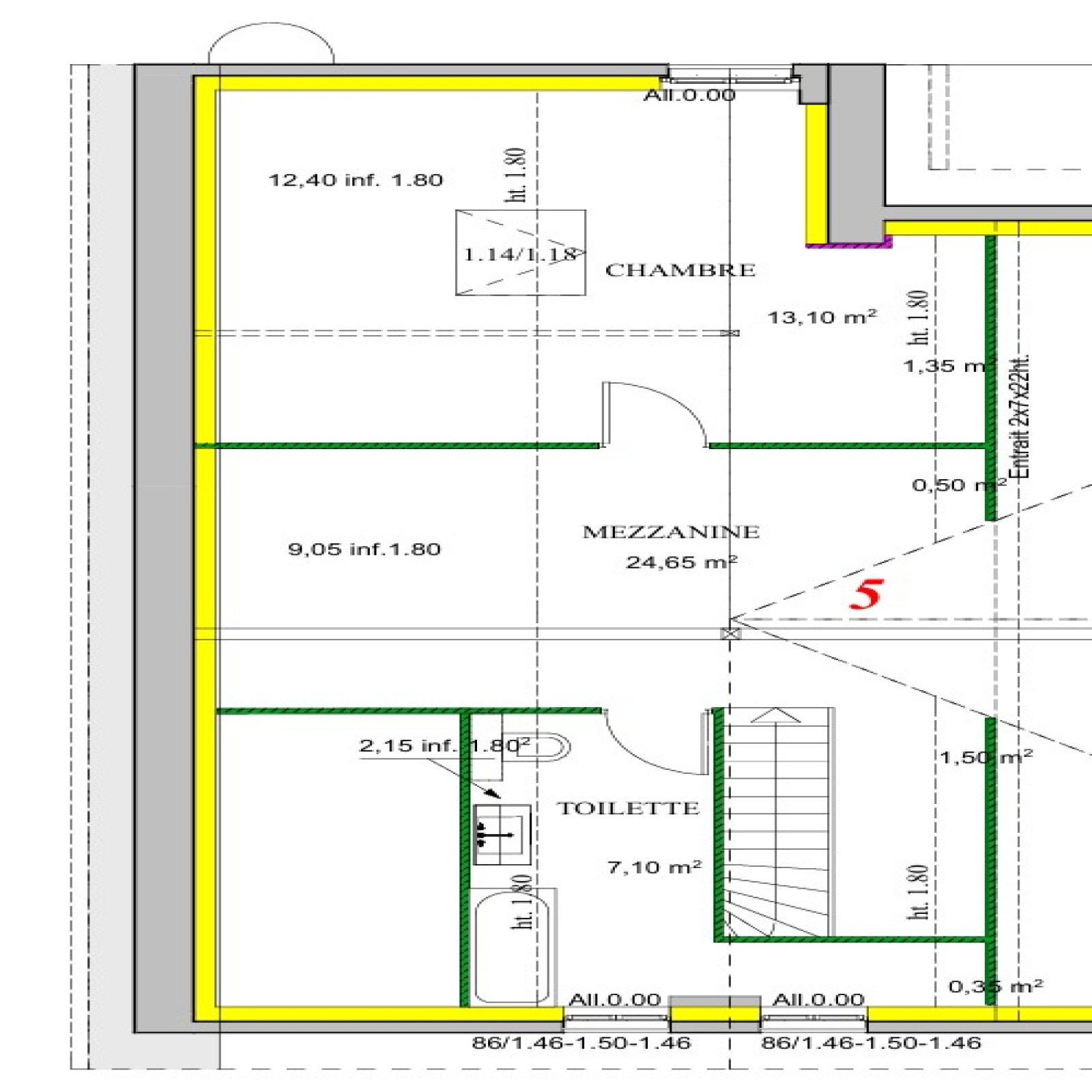
À l'étage, une seconde chambre de 25 m² au sol (13 m² Loi Carrez), une mezzanine de 24 m² et une salle de bain avec second WC.
Les travaux sont en cours et l'appartement sera terminé en septembre 2025.
L'appartement est vendu avec une place de parking intérieur (porte motorisée) et une place de parking extérieure incluses dans le prix.
L'ensemble du bâtiment sera complètement rénové (façade, isolation, fenêtres, parking).
Travaux réalisés par des entreprises locales et avec garantie décennale.
06.76.49.17.77
Les caractéristiques Du bien
Les infos Financières
La base légale du traitement repose sur l’intérêt légitime de l'Agence / du Réseau.
Elles sont conservées jusqu'à demande de suppression et sont destinées à l'Agence / au Réseau.
Conformément à la loi « informatique et libertés », vous pouvez exercer votre droit d'accès aux données vous concernant et les faire rectifier en contactant l'Agence / le Réseau.
Si vous estimez, après avoir contacté l'Agence / le Réseau, que vos droits « Informatique et Libertés » ne sont pas respectés, vous pouvez adresser une réclamation à la CNIL.
Nous vous informons de l’existence de la liste d'opposition au démarchage téléphonique « Bloctel », sur laquelle vous pouvez vous inscrire ici : https://www.bloctel.gouv.fr
Dans le cadre de la protection des Données personnelles, nous vous invitons à ne pas inscrire de Données sensibles dans le champ de saisie libre
Ce site est protégé par reCAPTCHA, les Politiques de Confidentialité et les Conditions d'Utilisation de Google s'appliquent.
Détails des diagnostics énergétiques
Appartement T3 avec terrasse
