Orchamps-Vennes (25390) APPARTEMENT T2
Dans un quartier calme d'Orchamps-Vennes, venez découvrir ce projet de réhabilitation de cette bâtisse en 5 logements.
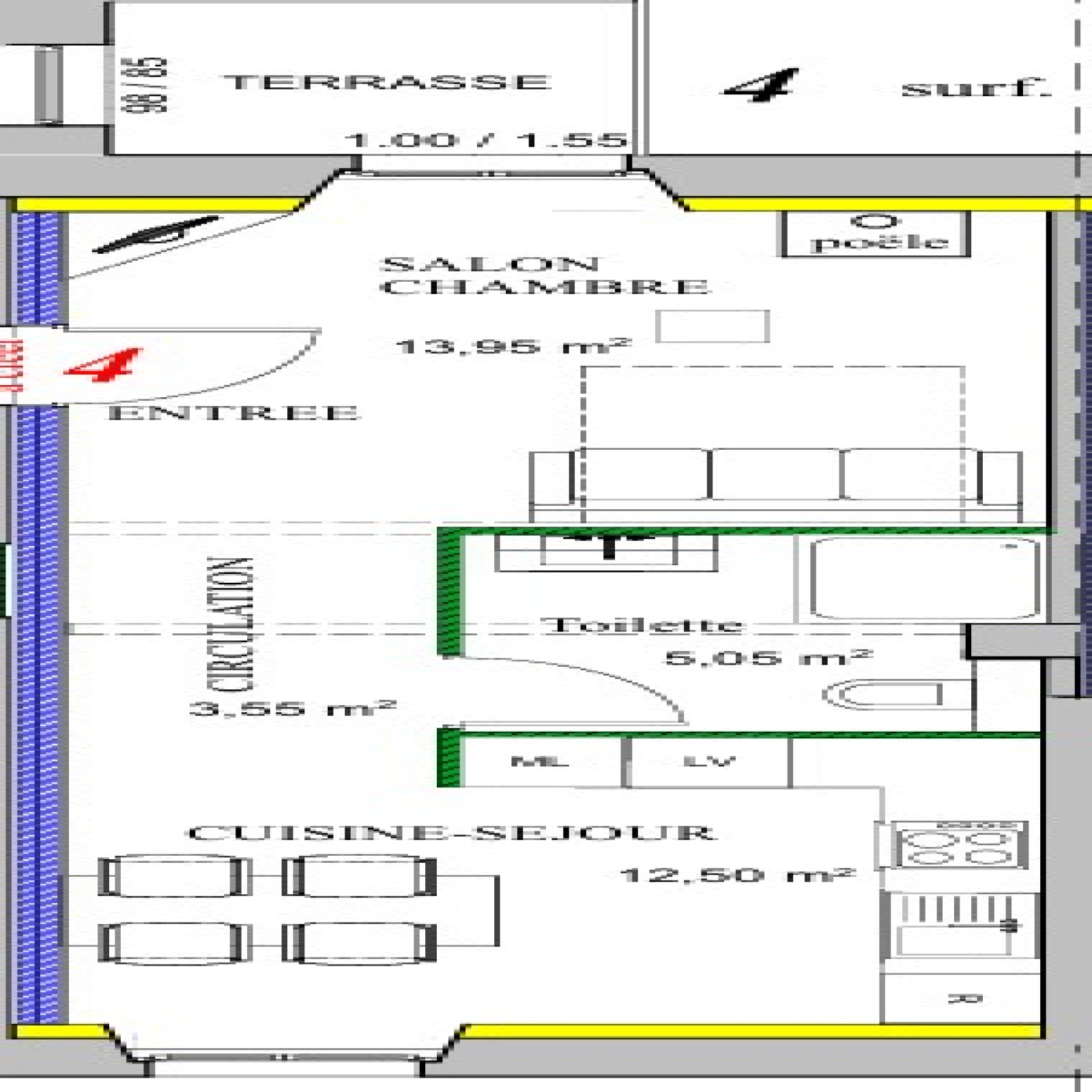
La résidence L'ORICAMPIENNE vous offre la possibilitée de devenir propriétaire de ce logement de 35 m²,
Situé au 1er étage, il sera composé d'un salon-chambre de 14 m² , d'une cuisine de 12.5 m² et d'une salle d'eau avec WC
Les travaux sont en cours et l'appartement sera terminé en décembre
L'appartement est vendu avec une place de parking extérieure et une cuisine aménagée et équipée incluses dans le prix.
L'ensemble du bâtiment sera complètement rénové (façade, isolation, fenêtres, parking).
Travaux réalisés par des entreprises locales et avec garantie décennale.
Idéal pour un investissement locatif ou pour un 1er achat
06.76.49.17.77
Les caractéristiques Du bien
Les infos Financières
Les infos Energetiques
Montant estimé des dépenses annuelles d'énergie pour un usage standard est compris entre 600 € et 1 000 € . Prix moyens des énergies indexés sur les années 2021, 2022 et 2023 (abonnements compris).
Localisation Du bien
-
Commerces et santé
-
Loisirs
-
Ecoles
-
Transports
-
Pratique
La base légale du traitement repose sur l’intérêt légitime de l'Agence / du Réseau.
Elles sont conservées jusqu'à demande de suppression et sont destinées à l'Agence / au Réseau.
Conformément à la loi « informatique et libertés », vous pouvez exercer votre droit d'accès aux données vous concernant et les faire rectifier en contactant l'Agence / le Réseau.
Si vous estimez, après avoir contacté l'Agence / le Réseau, que vos droits « Informatique et Libertés » ne sont pas respectés, vous pouvez adresser une réclamation à la CNIL.
Nous vous informons de l’existence de la liste d'opposition au démarchage téléphonique « Bloctel », sur laquelle vous pouvez vous inscrire ici : https://www.bloctel.gouv.fr
Dans le cadre de la protection des Données personnelles, nous vous invitons à ne pas inscrire de Données sensibles dans le champ de saisie libre
Ce site est protégé par reCAPTCHA, les Politiques de Confidentialité et les Conditions d'Utilisation de Google s'appliquent.
Détails des diagnostics énergétiques
Montant estimé des dépenses annuelles d'énergie pour un usage standard est compris entre 600 € et 1 000 € . Prix moyens des énergies indexés sur les années 2021, 2022 et 2023 (abonnements compris).
